賃貸, マンション,店舗,広島市,中区,舟入,不動産,ペット

登録・更新日:2025/10/31
| 賃料 | 6万5000円 
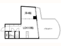
 | 敷金 ・ 礼金 | 2ヶ月 ・ 1ヶ月 | 間取り | 2DK 東向き | 
|---|---|---|---|---|---|
| 主要アクセス | 広島電鉄宇品線 中電前駅 から 徒歩2分 | 専有面積 | 42.1m 2 ( 12.73坪 ) | ||










        ![[メールで簡単] この物件を問い合わせる](/img/meiho-k/button_mail_head.gif) 
    
| アクセス | 広島電鉄宇品線 中電前駅 から 徒歩2分 | 種別 | アパート・マンション | 
|---|---|---|---|
| 所在地 | 広島県広島市中区大手町3丁目 | 学校区 | - | 
| 賃料 | 6万5000円 | 管理・共益費 | 0円 | 
|---|---|---|---|
| 礼金 | 1ヶ月 | 敷金・保証金 | 2ヶ月 ・ - | 
| 償却・敷引 | - | 雑費 | - | 
| 家賃保証会社 | - | 保険料 | 18,000円 | 
| 契約期間 | - | 更新料 | - | 
| 間取り | 2DK 東向き | 専有面積 | 42.1m 2 ( 12.73坪 ) | 
|---|---|---|---|
| 構造 | 鉄筋コンクリート造 | バルコニー面積 | - | 
| 所在階 / 階数 | 3階 / 5階建 | 完成年月 | 1984年05月 ( 築41年 ) | 
| 管理 | - | 総戸数 | - | 
| 駐車場 | - | バイク置場 | - | 
| 駐輪場 | - | ||
| リフォーム | - | リノベーション | - | 
| 設備・条件 | 都市ガス/二階以上 | ||
| 現況 ・ 入居 | 空室 ・ 相談 | 取引態様 | 仲介 | 
|---|---|---|---|
| 次回更新日 | 2025/11/07 | QRコード | 
   
 QRコードから物件情報を見ることが出来ます。読み取りにくい方はこちらからQRコードを拡大できます。 | 
| 担当者 | - | ||
| 大手町山本ビルへの お問い合わせは株式会社明豊開発 本店まで 
 
 | 
 
                                                     | 
最近見た物件 (1)